Hobart AMXR-VHL Electronic Pass Through Hood Dishwasher with VAPOSTOP and AUTO HOOD LIFT
Review: 5 - "A masterpiece of literature" by , written on May 4, 2006
I really enjoyed this book. It captures the essential challenge people face as they try make sense of their lives and grow to adulthood.
Categories
  • Customer
    Convenience Delivery
  • 99% Customers
    Feedbacks
  • Payment
    Secure System
  • Best
    Brands

Hobart AMXR-VHL Electronic Pass Through Hood Dishwasher with VAPOSTOP and AUTO HOOD LIFT

“Please check stock before placing order.”: In stock
  • Product SKU: AMXR-VHL
$29,393.00 $45,220.00
Exc. GST
NOW YOU SAVE FROM $15,827.00
silverchef logo Lease from $373.07 per week

Hobart AMXR-VHL Electronic Pass Through Hood Dishwasher with VAPOSTOP and AUTO HOOD LIFT

Description

  • AMXR with VAPOSTOP and AUTO HOOD LIFT
  • Hood-type dishwasher for straight through or corner operation
  • Integrated drain heat recovery
  • Nominal capacity up to 60 racks/h or 1,080 plates/h or 2,160 glasses/h
  • 6 automatic cycles: short, standard, intensive, starch-removal, permanent, hygiene
  • Heat and noise insulated hood
  • Strainer soil sensor
  • Refill signal (detergent / rinse aid)
  • Self-cleaning program
  • USB-interface for comfortable download of operational data
  • Ready to install - completely equipped: fill / drain hose, electrical cable, detergent dispenser, rinse aid dispenser, rinse pump, drain pump, back-flow preventer
  • Tank, frame, wash / rinse arms and panels are stainless steel 1.4301
  • 1 plate rack P-18-12
  • 1 universal flat rack B-00-07
  • 1 plastic cutlery rack CB8

Features

  • Drain heat recovery transfers heat from hot drain water to the freshwater supply, reducing boiler power consumption and saving up to 36% of costs 
  • VISIOTRONIC control: single button control with remaining time indicator together with text and graphic display 
  • SENSO-ACTIVE resource management: constantly measures the quality of the wash water and keeps the amount of rinsing needed in each rinse cycle to the minimum in order to guarantee a fully hygienic wash result 
  • Exhaust energy storage: the fully enclosed 4-sided hood keeps steam and energy inside the system: energy saving up to 3 kW, less humidity in the kitchen area and better hygienic conditions 
  • CLIP-IN wash and rinse arms: wash and rinse arms can be removed with one hand and without any tools 
  • GENIUS-X² fine filter system: advanced filter system with prewash function reduces detergent consumption up to 35% 
  • VAPOSTOP (optional): prevents vapour escaping from the machine when the hood is opened 
  • Certified to remove the need for an exhaust canopy 
  • Interlocked strainer: prevents operation without tank strainer 
  • EASY-CLEAN concept: blue markings in the machine help the operator to identify the components which require cleaning

TECHNICAL DATA

 

Cycle Times* 60 / 90 / 180 / Continuous (20mins)
Water Consumption 2 l/rack
Tank Capacity 23 l
Tank Heating 2.5 kW
Power Supply 415 / 50 / 3NPE
Booster Loading - Standard 6.2 kW
Total Loading - Standard 7.1 kW l 3 x 15 A
Wash Pump 0.7 kW
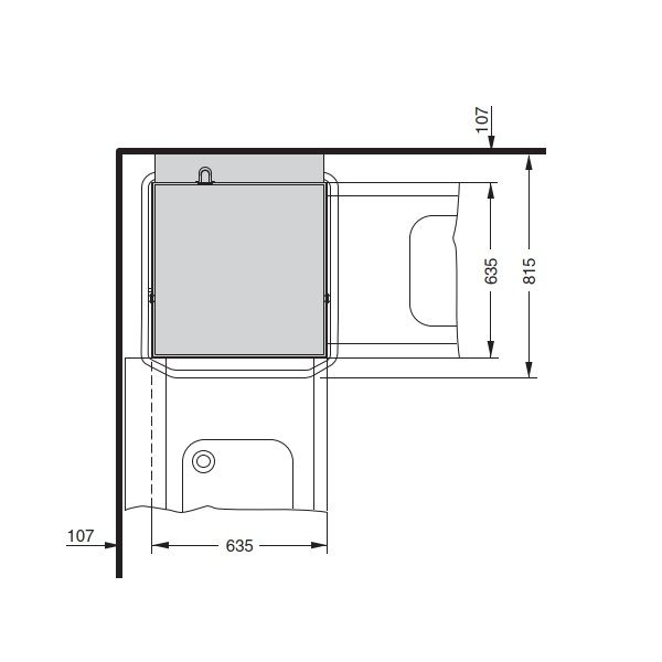
Rack Size 500 x 500 mm
Loading Height 440 mm
Noise Level 66 dB (A)
Weight (gross / net) 134 / 114 kg

For machine protection the water hardness should not exceed 3°dH, if higher we recommend using a HOBART HYDROLINE water softener / treatment system.

 

Hobart AMXR-VHL Electronic Pass Through Hood Dishwasher with VAPOSTOP and AUTO HOOD LIFT

Description

  • AMXR with VAPOSTOP and AUTO HOOD LIFT
  • Hood-type dishwasher for straight through or corner operation
  • Integrated drain heat recovery
  • Nominal capacity up to 60 racks/h or 1,080 plates/h or 2,160 glasses/h
  • 6 automatic cycles: short, standard, intensive, starch-removal, permanent, hygiene
  • Heat and noise insulated hood
  • Strainer soil sensor
  • Refill signal (detergent / rinse aid)
  • Self-cleaning program
  • USB-interface for comfortable download of operational data
  • Ready to install - completely equipped: fill / drain hose, electrical cable, detergent dispenser, rinse aid dispenser, rinse pump, drain pump, back-flow preventer
  • Tank, frame, wash / rinse arms and panels are stainless steel 1.4301
  • 1 plate rack P-18-12
  • 1 universal flat rack B-00-07
  • 1 plastic cutlery rack CB8

Features

  • Drain heat recovery transfers heat from hot drain water to the freshwater supply, reducing boiler power consumption and saving up to 36% of costs 
  • VISIOTRONIC control: single button control with remaining time indicator together with text and graphic display 
  • SENSO-ACTIVE resource management: constantly measures the quality of the wash water and keeps the amount of rinsing needed in each rinse cycle to the minimum in order to guarantee a fully hygienic wash result 
  • Exhaust energy storage: the fully enclosed 4-sided hood keeps steam and energy inside the system: energy saving up to 3 kW, less humidity in the kitchen area and better hygienic conditions 
  • CLIP-IN wash and rinse arms: wash and rinse arms can be removed with one hand and without any tools 
  • GENIUS-X² fine filter system: advanced filter system with prewash function reduces detergent consumption up to 35% 
  • VAPOSTOP (optional): prevents vapour escaping from the machine when the hood is opened 
  • Certified to remove the need for an exhaust canopy 
  • Interlocked strainer: prevents operation without tank strainer 
  • EASY-CLEAN concept: blue markings in the machine help the operator to identify the components which require cleaning

TECHNICAL DATA

 

Cycle Times* 60 / 90 / 180 / Continuous (20mins)
Water Consumption 2 l/rack
Tank Capacity 23 l
Tank Heating 2.5 kW
Power Supply 415 / 50 / 3NPE
Booster Loading - Standard 6.2 kW
Total Loading - Standard 7.1 kW l 3 x 15 A
Wash Pump 0.7 kW
Rack Size 500 x 500 mm
Loading Height 440 mm
Noise Level 66 dB (A)
Weight (gross / net) 134 / 114 kg

For machine protection the water hardness should not exceed 3°dH, if higher we recommend using a HOBART HYDROLINE water softener / treatment system.

 

Delivery information

We deliver Monday to Friday during regular business hours.
After your order has been shipped from our suppliers warehouses,

delivery times will be approximately:

  • 3-5 business days for metro, Brisbane, Sydney and Melbourne
  • 3-7 business days for Gold Coast, Sunshine Coast and Newcastle, Adelaide
  • 5-10 business days for Perth
  • 7-14 business days for all other regions

Delivery dates are not guaranteed and subject to courier availability. Please allow for up to 5 additional business days.
Standard deliveries are Kerbside Drop-off (Door-to-Door) only (not delivered inside your premises)

  • Standard deliveries are completed by a single driver to keep costs down
  • Standard deliveries do not allow delivery date/time reservations
  • If you require In-Store Delivery (Premium Delivery Service), plus any additional services such as removal of old appliances, removal of packaging or a precise day/time for delivery,

Leave a memo when check out so that we can arrange this to private courier.

Premium deliveries are In-Store (delivered inside your premises) 

  • Premium Deliveries are completed by two-men teams and provide some Additional Premium Delivery services
  • Premium Deliveries do not include shopping centres, without a special quote
  • Premium Deliveries do not include flights of stairs, without a special quote
  • Premium Deliveries do not lifting heavy equipment over counters, without a special quote
  • If you require In-Store Delivery (Premium Delivery Service), plus any additional services such as removal of old appliances, removal of packaging or a precise day/time for delivery,

Leave a memo when check out so that we can arrange this to private courier.

Once you’ve completed your purchase, our system will process your order and send you an email to confirm we have received your information. In the unlikely event that we have to change anything about your order, we'll be in touch asap.
Your tracking number will be sent a couple days after your order has been processed and you will be able to self-monitor your delivery on the courier's website or We’ll keep you update by SMS or email. If you need any assistance, you can always email us for support

We request all couriers to call you the day before delivery to arrange an approximate delivery window. We use private couriers for all deliveries including TNT, StarTrack, Cope Sensitive Freight, AirRoad and others, depending on the items and your location.
If you require removal of old appliances, must be disconnected, and drained in order for couriers to collect and dispose of them.
Large Item Deliveries

  • Measure: Use a Measuring Tape
  • Access
  • Purchase

 

SilverChef - Rent-Try-Buy

 

Catering Sale partners exclusively with Australia’s only dedicated hospitality equipment funder, Silver Chef. For 30 years Silver Chef have helped more than 30,000 customers – from start-up cafes to large restaurants and hotels – realize their business dreams. 



SilverChef’s Rent-Try-Buy® solution is a 12-month agreement that lets you try before you buy and gives you five flexible options to choose from throughout the term of your contract.

Upgrade equipment at any time
 Purchase equipment at any time and receive a 75% net rental rebate on your payments made in the first year

 After your 12-month agreement ends, choose your option:

 Continue renting and the purchase price will continue to drop
 Return equipment with no further obligation, or
 Work towards ownership with Easy Own® and enjoy a 30% discount on your weekly payments over 36 months

SilverChef Logo

Apply for Finance l SilverChef

Questions & Answers

Have a Question?

Be the first to ask a question about this.

Ask a Question

Recently Viewed Products